

物件詳細情報
物件No.20000450771
| 所在地 | 千葉県習志野市津田沼1丁目 | ||
|---|---|---|---|
| 交通 | 総武線「津田沼」駅徒歩7分 京成松戸線「新津田沼」駅徒歩5分 京成本線「京成津田沼」駅徒歩11分 |
||
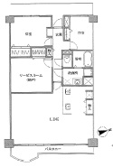
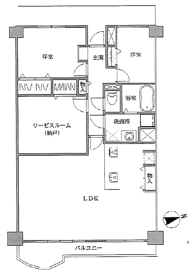
| 間取 | 2SLDK | ||
| 専有面積 | 79.49m² (壁芯) | ||
| バルコニー面積 | 7.69m² 東向き | ||
| 販売戸数 | 1戸 | 総戸数 | 全118戸 |
| 構造・規模 | 鉄骨鉄筋コンクリート造 13階建て 1階部分 |
築年・入居 | 1977年3月築 |
| 現況 | 空室 | 引渡時期 | 即引渡可 |
| 権利種類 | 所有権 | 管理費 | 10,000円/月(非居住者は11000円/月) |
| 修繕積立金 | 19,000円/月 | 管理形態 | 日勤 全部委託 |
| 管理会社 | 株式会社日立産機グリーンテック | 駐車場 | 敷地内にあり 料金:9,175 ~ 9,280円/月 |
| 自治会費 | 400円/月 | 取引態様 | 媒介 |
| リフォーム |
|
||
| 設備 | 公営水道、本下水、都市ガス | ||
こだわり項目
リフォーム済み全居室収納システムキッチン3口以上コンロエレベーターバイク置場全居室フローリング
- ※価格は物件の代金総額を表示しており、消費税が課税される場合は税込み価格です。(1,000円未満は切り上げ。)
税率は引き渡し時期により異なりますので、各物件の詳細につきましてはお問い合わせください。 - ※敷地権利が借地権のものは価格に権利金を含みます。
- ※制作中に内容が変更される場合もありますので、あらかじめご了承ください。
- ※購入の前には物件内容や契約条件についてご自身で十分な確認をしていただくようにお願いいたします。
- ※完成予想図はいずれも外構、植栽、外観等実際のものとは多少異なることがあります。
- ※CG合成の画像の場合、実際とは多少異なる場合があります。
周辺地図
周辺施設一覧
- ショッピングセンター
- スーパー
- コンビニ
- ドラッグストア
- ホームセンター
- 飲食店
- その他店舗
- 商店街
- 大学
- 専門学校
- 高校・高専
- 中学校
- 小学校
- 保育園
- 幼稚園
- 公民館・児童館
- 病院
- 郵便局
- 役所
- 図書館
- 金融機関
- 警察・消防
- 趣味・娯楽施設
- 公園・運動施設
- 周辺の街並み
- 駅
- その他
お問い合せ先
- 株式会社家ナビ
- お電話でのお問い合わせは
047-460-2677「ホームページを見た」とお問い合わせください - 千葉県船橋市東船橋2-7-7
- 営業時間:9:30~18:00
- 定休日:毎週火曜・水曜・祝日
- 免許番号:千葉県知事(4)第15998号






